109 Easy St, Murrells Inlet, SC 29576
Toggle Navigation
Images
Floor Plans
3D Tour
Map
109 Easy St
Murrells Inlet, SC 29576
Scroll to Content
Images
Slideshow
Photo Grid
Hide
Previous
Next
Show more
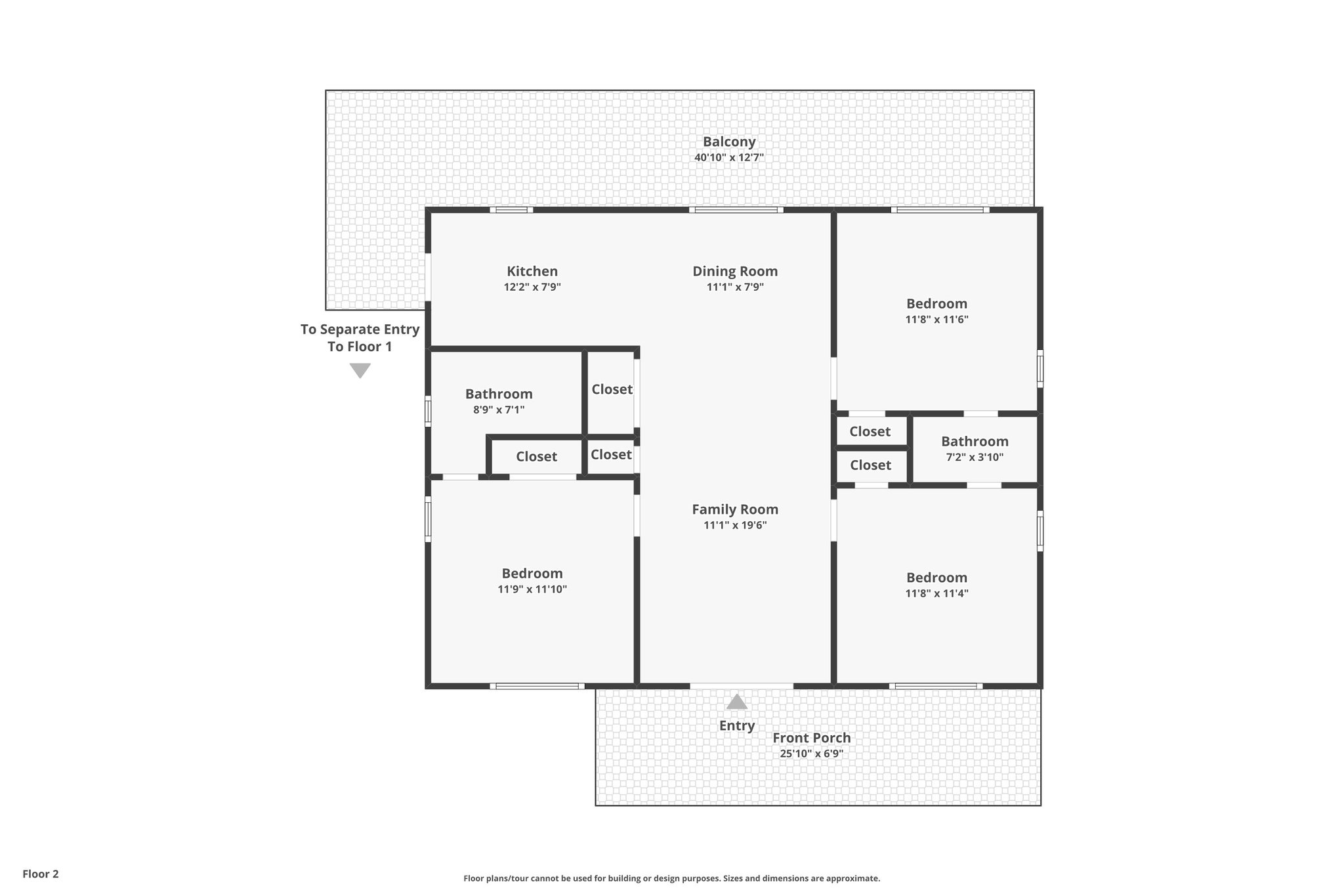
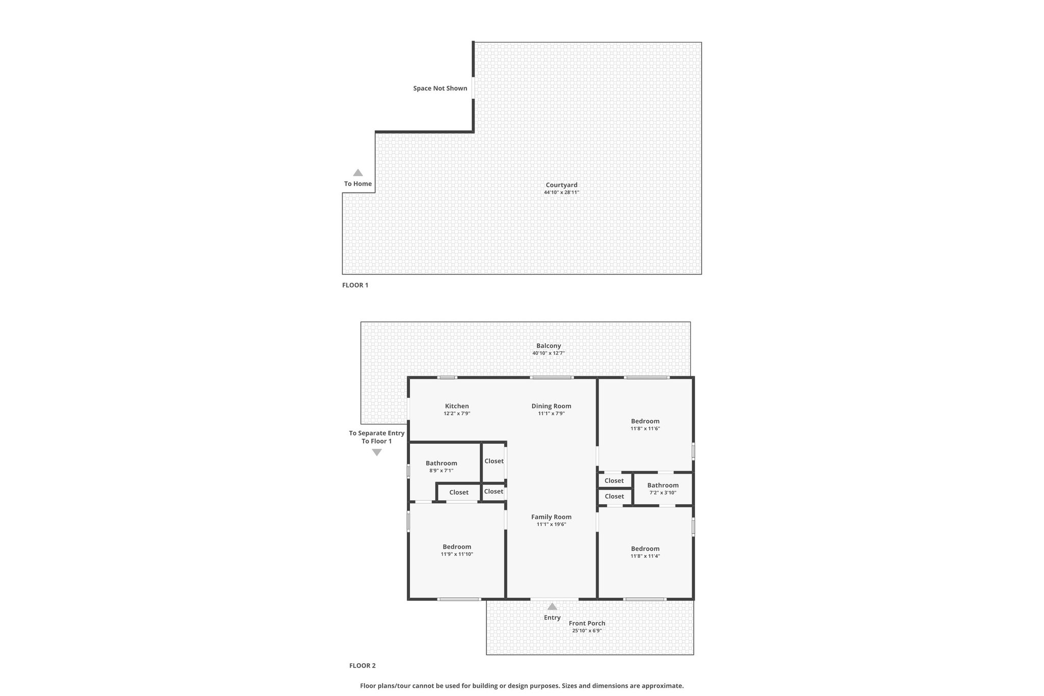
Floor Plans
Slideshow
Photo Grid
Hide
Previous
Next
3D Tour